• News
  • Projekte
    • Galerie
    • Liste
    • Bauen im Bestand
    • Gewerbebauten
    • Industriebauten
    • Wohnbauten
    • Wettbewerbe
  • BIM
  • Firma
  • Team
  • Jobs
  • Whatsnext
  • Publikationen
  • Kontakt
  • Neubau Einfamilienhaus

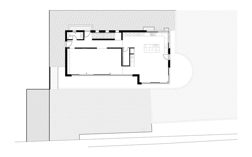
    Ziel: Das bestehende, schadstoffhaltige und von Feuchtigkeitsschäden geprägten Einfamilienhaus soll abgerissen und durch eine grosszügige, helle und moderne Villa ersetzt werden.

    Problemstellung:  Das neue Haus musste im Eingangsgeschoss um die bestehende Garage projektiert werden. Diese wurde aus baureglementarischen Gründen nicht rückgebaut und musste in das neue Gesamtbild integriert werden.  

    spa: Durch die 2-flüglige holzige Eingangsfront gelangt man über die grosszügige Eingangshalle via Treppe in den Wohntrakt. Aus dem grosszügigen Wohnzimmer sowie aus den Zimmern im Obergeschoss kann die Weitsicht auf den Zürichsee genossen werden. Ein Blickfang sind auch die fugenlosen Bodenbeläge sowie die raumhohen, rahmenlosen Innentüren, welche sich durch das ganze Gebäude ziehen. 

    • Ort: Raum Zürich
    • Kategorie: Wohnbauten
    • Baubeginn: 2019
    • Fertigstellung: 2020
    • Status: Realisiert
    • Gesamtleitung spa: Alain Zimmermann
    • Projektleitung spa: Alain Zimmermann
    • Team spa: Massimo Dominkovits
    Neubau Einfamilienhaus
    Raum Zürich
    Wohnbauten
    None
    2020
    Realisiert
    3865
spa*. Wir leben Architektur.