• News
  • Projekte
    • Galerie
    • Liste
    • Bauen im Bestand
    • Gewerbebauten
    • Industriebauten
    • Wohnbauten
    • Wettbewerbe
  • BIM
  • Firma
  • Team
  • Jobs
  • Whatsnext
  • Publikationen
  • Kontakt
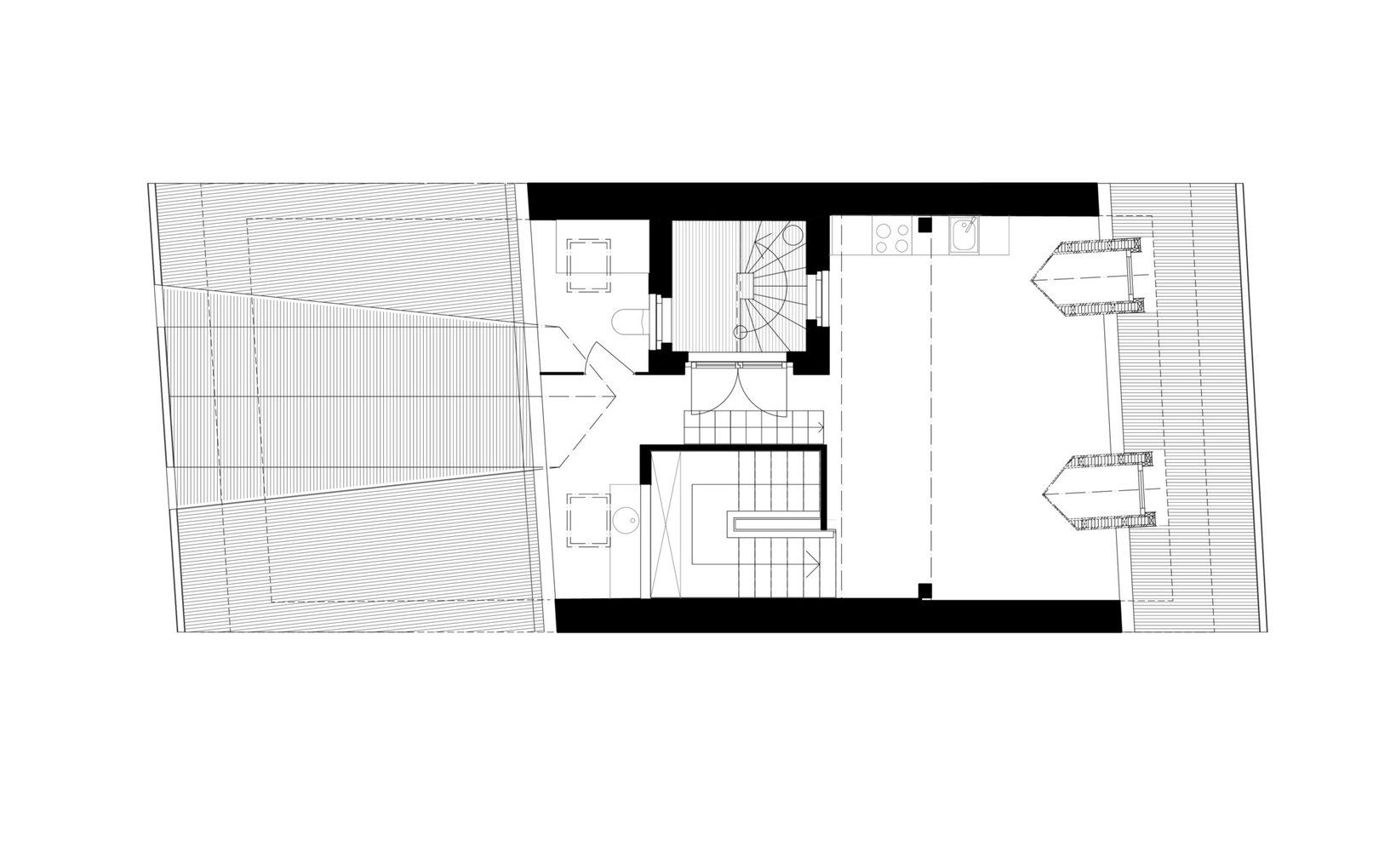
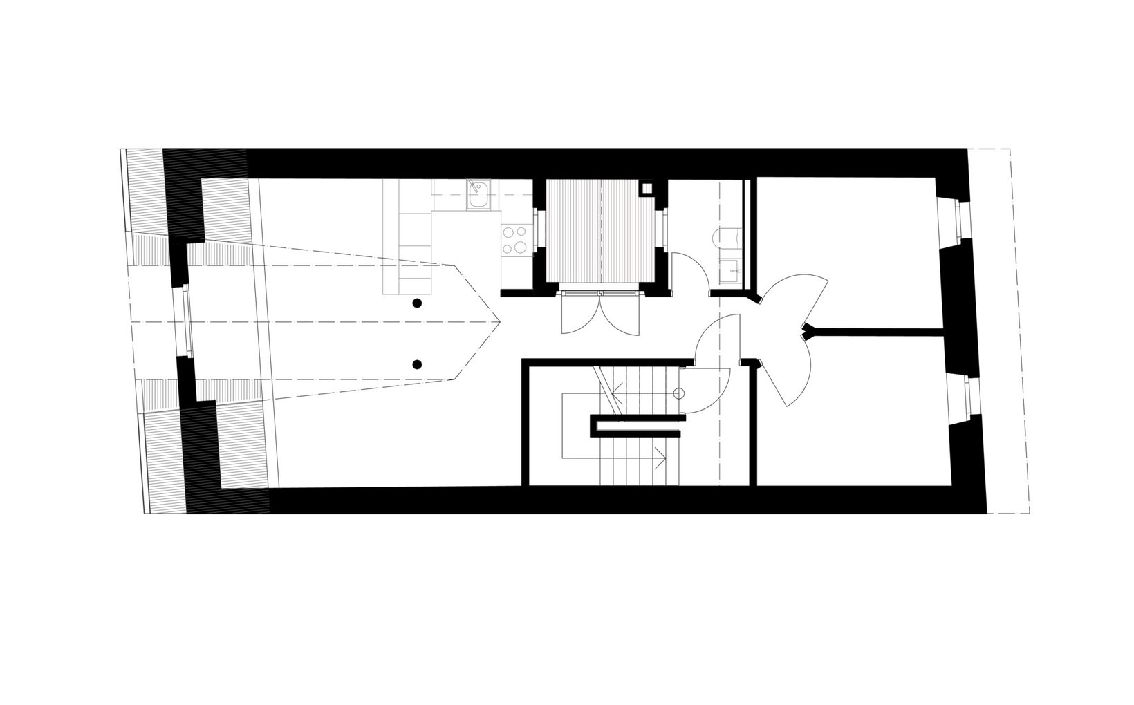
  • Umbau Altstadtliegenschaft

    Umbau bzw. Komplettsanierung einer Altstadtliegenschaft in fünf Mietwohnungen. 

    • Ort: Solothurn
    • Kategorie: Bauen im Bestand, Wohnbauten
    • Baubeginn: 2019
    • Fertigstellung: 2020
    • Status: Realisiert
    • Gesamtleitung spa: Massimo Dominkovits
    • Projektleitung spa: Massimo Dominkovits
    Umbau Altstadtliegenschaft
    Solothurn
    Bauen im Bestand, Wohnbauten
    None
    2020
    Realisiert
    39830
spa*. Wir leben Architektur.