• News
  • Projekte
    • Galerie
    • Liste
    • Bauen im Bestand
    • Gewerbebauten
    • Industriebauten
    • Wohnbauten
    • Wettbewerbe
  • BIM
  • Firma
  • Team
  • Jobs
  • Whatsnext
  • Publikationen
  • Kontakt
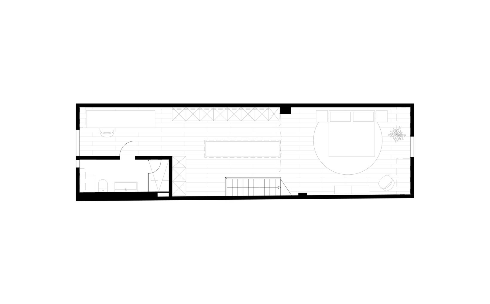
  • Umbau Altstadtliegenschaft

    Die Bauherren wünschten sich eine stilvolle Sanierung ihrer Liegenschaft. Über drei Stockwerke wurde der Umbau innert kürzester Zeit realisiert und mit viel Liebe zum Detail umgesetzt. 

    • Ort: Aarburg
    • Kategorie: Bauen im Bestand, Wohnbauten
    • Baubeginn: 2021
    • Fertigstellung: 2021
    • Status: Realisiert
    • Gesamtleitung spa: Massimo Dominkovits
    Umbau Altstadtliegenschaft
    Aarburg
    Bauen im Bestand, Wohnbauten
    None
    2021
    Realisiert
    39520
spa*. Wir leben Architektur.